概述一下35kv铠装开关柜的具体参数
KYN61-40.5 型铠装移开式交流金属封闭型开关设备
1. 概述
KYN61-40.5铠装移开式交流金属封闭开关设备 (以下简称开关设备) 是安徽得润电气技术有限公司开发的产品,额定电压及频率分别为40.5KV,50(60Hz)。主要用于工厂和电力系统中接受和分配电能并对电路实行控制、保护和监测。其主要特点是能配真空断路器或SF6断路器,柜体采用组装结构,提高了产品品质和配合精度。
符合标准
GB3906-2006 《3~35kV交流金属封闭开关设备》
GB11022-89 《高压开关设备通用技术条件》
IEC62271-200(2003)《额定电压1 kV以上52kV及以下交流金属封闭开关设备和控制设备》
2.型号及含义

3.使用环境条件
1、环境温度:最高温度+40℃,最低温度-10℃;
2、环境湿度:日平均相对湿度≤95%,月平均相对湿度在≤90%;
3、海拔高度:1000m以下;
4、抗地震度:地震烈度不超过8度;
5、周围空气应不含腐蚀性或可燃气体、水蒸气等明显污染;
6. 无严重污秽及经常性的剧烈振动,严酷条件下严酷度设计满足1类要求。


5.结构特征
(见图1、图2)

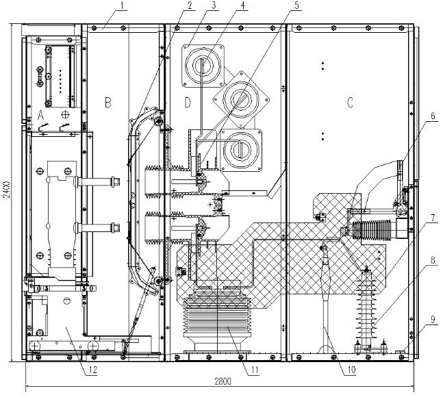
A、继电器室 B、断路器手车室 C、电缆室 D、母线室
1、外壳 2、绝缘子 3、穿墙套管 4、母线室绝缘板 5、主母线
6、触头盒 7、接地开关 8、电缆室绝缘板 9、避雷器 10、接地主母线
11、一次电缆 12、电流互感器 13、断路器
图1 开关柜结构图(配ZN85-40.5断路器)

A、继电器室 B、断路器手车室 C、电缆室 D、母线室
1、外壳 2、活门机构 3、穿墙套管 4、主母线 5、触头盒
6、接地开关 7、电缆室绝缘板 8、避雷器 9、接地主母线 10、一次电缆
11、电流互感器 12、断路器
图2 开关柜结构图(配VD4-40.5断路器)
6. 开关设备安装
1.开关设备的安装基础尺寸与安装尺寸(见图3、4)

图3
开关设备地基安装图 开关设备安装示意图
(配ZN85-40.5 安装基础图及底板孔尺寸)



8.订货须知
KYN61-40.5开关柜订货时应提供下列技术资料:
1.主接线方案图编号、用途和单线系统图、额定电压、额定电流,额定短路开断电流、配电室平面布置图及开关柜的排列配置图等;
2.开关柜控制、测量及保护功能的要求以及其它闭锁和自动装置的要求及原理图;
3.开关柜内主要电气元件的型号,规格及数量。











